Slaapkamer in gerenoveerde notariswoning
In deze ruime slaapkamer in een oude notariswoning hebben we een compleet interieur ontworpen en gerealiseerd. Het bed is uitgevoerd met het hoofdpaneel Finotôre, geplaatst tegen een houten wand in Red Gum. Dit bijzondere hout komt terug in de kasten, de kaptafel en de roomdivider. De indeling is praktisch en overzichtelijk, met een inloopgedeelte, een grote kledingkast en een dressing table met gestoffeerd bankje in het midden van de kamer.
Red Gum – warm hout met karakter
Red Gum is een exclusieve houtsoort met een warme, roodbruine kern en een zijdeachtige glans. De contrasterende kleurschakeringen geven elk meubelstuk een eigen karakter. Door de fijne structuur laat het hout zich perfect glad afwerken, wat het ideaal maakt voor maatwerkinterieurs.
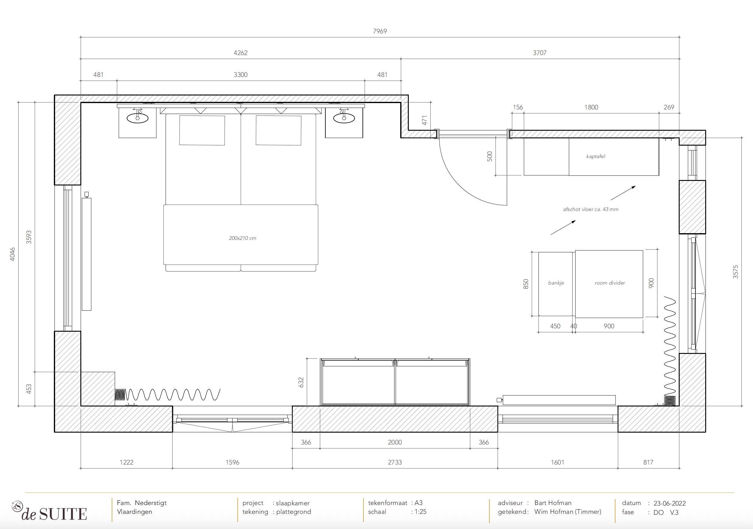
Slaapkamerindeling
De grote slaapkamer is ingedeeld in een slaapgedeelte met het bijzondere bed en een aparte zone als inloopkamer. In deze ruimte staat een royale kast, die vanwege het karakteristieke plafond niet is ingebouwd maar vrijstaand is geplaatst. De dressing table met bankje vormt het hart van de kamer, aangevuld met een compact bureau voor dagelijks gebruik.
Een slaapkamer laten maken bij De Suite
In deze gerenoveerde notariswoning hebben we een complete slaapkamer gemaakt waarin alles klopt. Wilt u ook een slaapkamer laten ontwerpen en maken die perfect aansluit bij uw ruimte? Bij De Suite verzorgen we het hele traject – van ontwerp tot montage.
Onze gids over slim en stijlvol slapen

Een bed van De Suite hoeft u nooit meer te vervangen. In onze gids – een mooie papieren uitgave om op uw gemak door te bladeren – leest u hoe dat werkt.